+1
Toulouse (31100)

Appartement 3 pièce(s) 2 chambre(s) 62 m²

1
1
Réf DP483-01

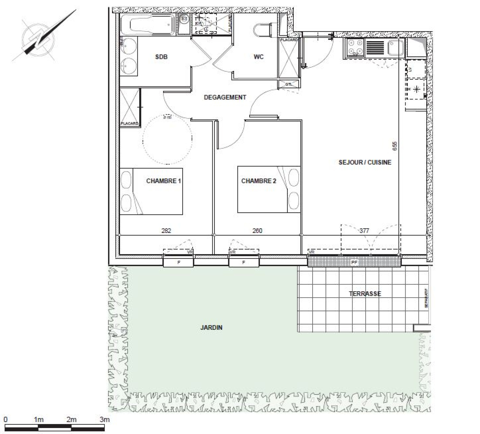
TOULOUSE - Au coeur du quartier SAINT SIMON - N'attendez pas pour acheter votre résidence principale, profitez des avantages de l'ACCESSION A PRIX MAITRISE. Appartement T3 de 62 m² situé en rez de jardin exposé Sud/Est. Il est composé d'une entrée avec placard, d'un espace Séjour / Cusine de 26 m² donnant sur une terrasse et un jardin sans vis à vis, d'une chambre avec placard de près de 13 m². Situé dans une résidence de 27 logements, il dispose d'une place de parking en sous/sol. Prestations : Cuisine aménagée, Chaudière gaz individuelle, RT 2012, murs en peinture lisse... Livraison 4ième trimestre 2019. Frais de notaire réduits. Prêt à taux Zéro. A proximité des zones d'activités de TOULOUSE BASSO CAMBO, SAINT MARTIN DU TOUCH, TOURNEFEUILLE, CUGNAUX... Pour plus d'informations, contactez le 06.24.43.23.55. 

Bilan énergétique

Diagnostics énergetiques
A propos de ce bien Caractéristiques de ce bien
  • Surface 62 m²
  • carrez 62 m²
  • 2 chambre(s)
  • 1 salle(s) de bain
  • construit en 2019
  • cuisine américaine
  • Chauffage individuel : radiateur (gaz)
  • exposition Sud-Est
  • 1 niveau(x)
  • 1 étage(s)
  • vue Jardin
  • terrasse
  • quartier Saint Simon

Info copro

Copropriété
  • Copropriété Oui
  • Lot n° 1
  • Nombre de lots 27

Financier

Informations financières
Les honoraires d'agence seront intégralement à la charge du vendeur  

Autour du bien

Découvrez le quartier

Simulation

Calcul des mensualités
* Champs obligatoires
D.SY.D Immobilier Agence