+3
Toulouse (31000)

Maison 3 pièce(s) 2 chambre(s) 65.5 m²

1
1
1
Réf DP455

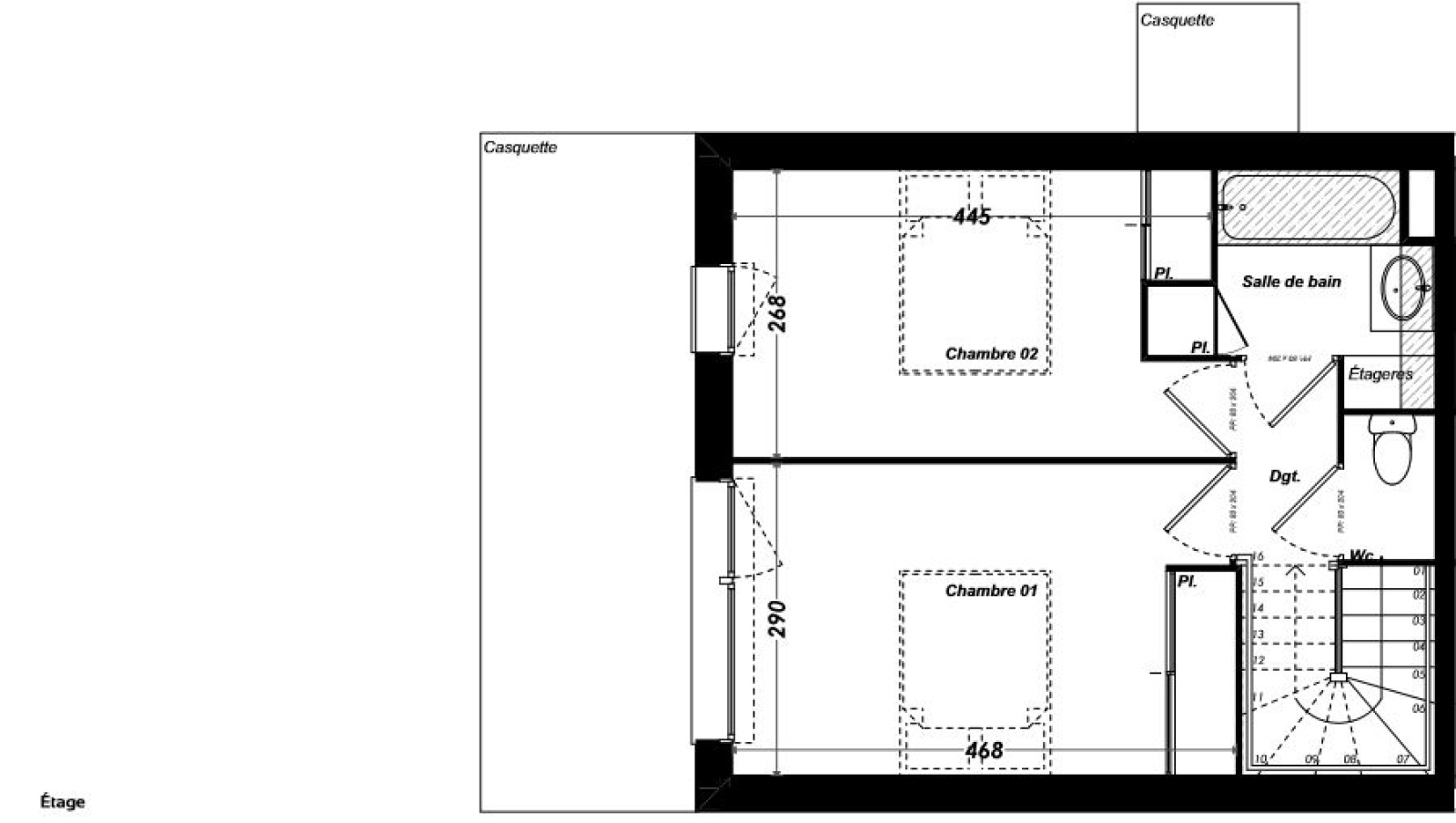
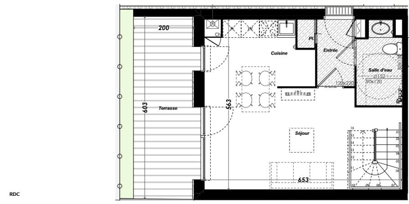
TOULOUSE - SAINT SIMON CENTRE - Cette VILLA T3 de 65 m² située à 5 mn à pied des commerces et services du coeur de Saint Simon permet de profiter d'une véritable vie de quartier. Elle est composée au rez de chaussée d'une entrée avec placard, d'un espace Séjour / Cuisine de 26 m² donnant sur une terrasse de 12 m² et d'une salle d'eau / Wc. A l'étage, 2 chambres avec placard de 13,5 et 11,5 m², une salle de bains et un 2nd Wc. Prestations : RT2012, chaudière gaz individuelle, volets roulants motorisés, peintures lisses, cuisine aménagée. Elle dispose d'une place de parking. Livraison 4ième Trimestre 2018. Située dans un ensemble de 6 villas, à proximité de la base de loisirs de LA RAMEE, à moins de 2 km de TOULOUSE BASSO CAMBO et 8 km de TOULOUSE SAINT MARTIN DU TOUCH et COLOMIERS. Pour toute information complémentaire, contactez le 06.24.43.23.55.

Bilan énergétique

Diagnostics énergetiques
A propos de ce bien Caractéristiques de ce bien
  • Surface 65,50 m²
  • 2 chambre(s)
  • 1 salle(s) de bain
  • 1 salle(s) d'eau
  • construit en 2018
  • cuisine américaine (semi-équipée)
  • Chauffage individuel : radiateur (gaz)
  • 1 parking(s)
  • exposition Ouest
  • 1 côté(s) mitoyen(s)
  • 2 niveau(x)
  • terrasse
  • quartier Saint Simon

Financier

Informations financières
Les honoraires d'agence seront intégralement à la charge du vendeur  

Autour du bien

Découvrez le quartier

Simulation

Calcul des mensualités
* Champs obligatoires
D.SY.D Immobilier Agence